PRIHODNJI MESEC DRAŽBA SEDMIH PARCEL V ŽABČAH

Torek, 29. april 2025

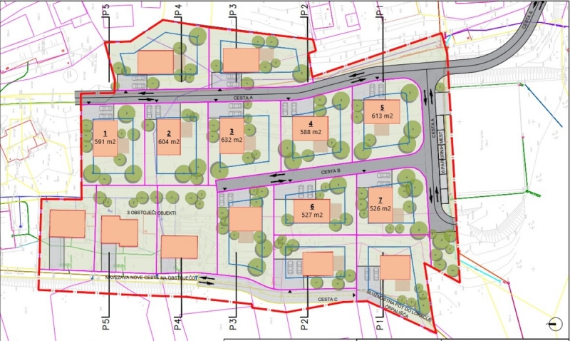
Poročali smo že, da je Občina Tolmin sredi aprila objavila dražbeni razglas za prodajo gradbenih parcel na zahodnem robu naselja Žabče.

Dražba bo potekala v sredo, 21. maja, ob 14.00 v galeriji Kinogledališča Tolmin, predmet dražbe pa je sedem gradbenih parcel v velikosti med 526 in 632 kvadratnih metrov po izklicnih cenah med 24.000 in 29.000 evrov. V izklicno ceno ni vštet 22% DDV, ki ga plača kupec, so o dražbi sporočili s tolminske občine. 

Župan Alen Červ pričakuje veliko zanimanje za dražbo:

Izjava Alen Červ 1

Na Občini Tolmin še izpostavljajo, da so dražitelji lahko samo fizične osebe, ki do nedelje, 18. maja, vplačajo 3000 evrov varščine. Ob vplačilu varščine mora dražitelj prodajalcu obvezno napovedati, pri dražitvi katerih nepremičnin bo sodeloval. Najnižji znesek višanja nad izklicno ceno bo 500 evrov. Vsak dražitelj lahko na javni dražbi kupi le eno od sedmih gradbenih parcel, ki so predmet prodaje.

Občina bo namreč poskrbela za to, da bodo parcele res namenjene stanovanjskim novogradnjam, zato si je v dražbenem razglasu zagotovila pravico, da zemljišče odkupi nazaj in ponudi drugemu ponudniku, če prvotni kupec v določenem roku ne pridobi gradbenega dovoljenja in ne pristopi h gradnji.

Izjava Alen Červ 2

Več informacij o dražbi je na voljo na spletni strani Občine Tolmin. Nadaljnje možnosti za stanovanjsko gradnjo na območju tolminske občine pa župan Červ še povzame takole:

Izjava Alen Červ 3



Simona Skočir

Komentarji

Oddajte svoj komentar

Za komentiranje se morate prijaviti. Če še nimate uporabniškega računa, si lahko tega ustvarite brezplačno!

Komentarji ne odražajo stališča uredniške politike Primorskega vala. Prosimo, da se pri komentiranju držite teme in ne uporabljate sovražnega govora.

Bodite prvi pri komentiranju novice, oddajte svoj komentar!



Pozabljeno geslo?

 

sobota
01.11.2025
14°C / 19°C
nedelja
02.11.2025
14°C / 18°C
ponedeljek
03.11.2025
8°C / 20°C